DRAMATIC DESIGN IDEAS FOR EVERYONE
Back Story
Priority Use Wishlist:
- Watching Movies
- Exercising
- Doing Hobbies
- Hosting Guests
UNINSPIRING WORKOUT & HOBBY AREA
POOL TABLE AREA
STAIRWELL
The Meeting and the Measuring
To get started on several design concepts, our AMEK team measured the space in its existing state. This as-built step provides the base plate for ideas to be formed. It’s important to know where mechanicals like heating and cooling, electric runs, and plumbing pipes are located.
Seeing What’s Possible
The day Matt and Maggie meet with our design team to reveal the concepts is an exciting one. The variations showed the potential layouts for the theater room, changes to the stair area, and placement for the workout room. Matt and Maggie’s winning plan reallocated some hallway space for the theater room and the workout area was enclosed with glass to provide a bright space.

Line drawings of envisioned spaces

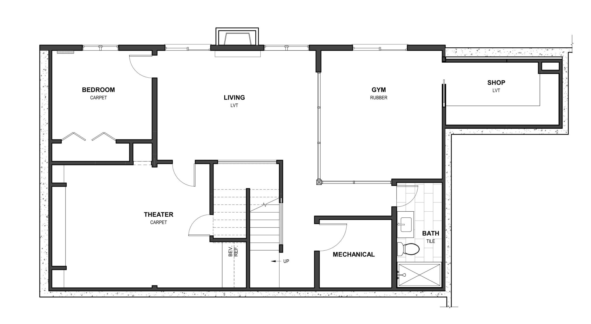
Original Floor Plan

Remodel Floor Plan
The Selections
Elements Based On:
- Complementing transition style on upper levels
- Staying within budget
- Keeping the space family friendly
- Having fun with theater room lighting
FAMILY FRIENDLY
TRANSITIIONAL STYLING
DRAMATIC & FUN LIGHTING
The Transformation
- Bright & Inspired Workout Space
- Theater & Gaming Room
- Specialty Hobby Room
- Guest Bedroom & Bathroom
Everything is a feature – the bright and open layout, the customized hobby room, the guest bedroom and bathroom, inspiring workout room, and the main attraction – the movie zone. The kids’ friends love having sleepovers, Mom gets in her daily workouts, and Dad has an organized place to care for his archery and paddling interests. Everyone is happy!
INSPIRING WORKOUT AREA
AWARD-WINNING THEATER LIGHTING & SET-UP
CUSTOMIZED CABINETRY
WELCOMING LOUNGE & OPEN STAIRWAY