THOUGHTFUL DESIGN FOR A GROWING FAMILY
Back Story
Once upon a time in the heart of Minneapolis, Ken and Sarah lived in a charming 1961 Cape Cod home. As their family grew, so did their frustrations.
Wishlist:
- Designed Kitchen
- Ample storage space
- Additional bathroom and bedroom
- Second-story laundry
- Family-friendly design
- Connected Living
EXTERIOR BEFORE
“We dreamt of a home that could accomodate our family.”
HOME OFFICE
“Limited storage space”
KITCHEN
Dysfunctional and awkward layout
The Meeting and the Measuring
Sarah and Ken met with the AMEK team several times, sharing their struggles and dreams for their home. The AMEK team listened, understanding the importance of these changes to Ken and Sarah’s daily life. Using a 3D camera, the team captured the home as it was providing measurements to be the launching pad for ideas.
Creative Solutions & A Surprise
Working within the Minneapolis zoning restrictions for additions, the AMEK team presented Sarah and Ken with three creative concepts for both levels offering different solutions. In the midst of reviewing plans to pick out key elements, the couple found out they were pregnant – with twins! This news intensified the collaboration process to ensure that the final plan was perfectly tailored to their needs as a soon-to-be family of five.

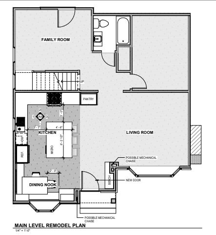
Solution Number 1: Sink in center island, Kitchenette, Table area on the right hand side


The Selections
- Blending the home’s original character 
with modern touches
- Using easy care finishes
DRAWER PULLS
LIGHT FIXTURE
Honoring house’s original character
COUNTERTOP
Modern, easy-to-clean finishes
The Transformation
- Connected kitchen and living room.
- Addition with bathroom, bedroom, and laundry
- Stylish dining room replacing a bedroom
When the remodel transformation was complete, Sarah and Ken were overjoyed. The open-concept kitchen with thoughtful design is a joy to cook in while watching the kids play, the new upstairs bathroom and laundry area make daily chores easier, and the dining room is perfect 
for family meals 
and entertaining.
KITCHEN TO LIVING ROOM
ADDITIONAL STORAGE
Built-in buffet for
serving and storage
FUNCTIONAL LIVING
FIT FOR TWINS
Added space for the family additions